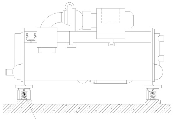
【技術】住院部制冷機組隔震示意圖
上海淞江減震器集團有限公司官方網站為您介紹:技術文章住院部制冷機組隔震示意圖信息,淞江集團為重醫院住院部中央空調系統提供隔震減震產品,產品質保10年,經久耐用的使用壽命給醫院節省了不少開支。

住院部,英文解釋為inpatient department;在工具書中的解釋亦稱住院處,是辦理病人入院業務的科室。應根據病人的性別、年齡、疾病種類、病情輕重、病人要求以及醫師意見,安排入院時間、入院先后順序、病房、病室和病床。因此,住院處應正確地掌握病房空床數和住院病人數(要按科室、專業、病房、病室和病人的疾病種類,性別、病情輕重來劃分)。
2017年12月1日,《公共服務領域英文譯寫規范》正式實施,規定住院部標準英文名為Inpatient Department.
住院部一般環境優美,裝修舒適。擁有眾多床位,一般配有多功能手術床,骨科專用床等。均配置中心供氧、中心呼叫系統、洗手間、空調、彩色電視機、電話等設施,提供“臨終關懷病房”的服務。設有重癥監護室 (ICU 病房 ) ,其內設備完善,配有進口呼吸機、導聯心電圖機、多參數心電監護儀、心臟除顫器、及離子導入理療儀等先進儀器。 為重癥患者提供更好、更快的搶救服務設施。住院部配有急癥手術室,內設全麻機,心電監護儀等全套設備,已經開展婦科、外科等手術多例。
技術人才方面,住院部配備一批專業的醫療精英以及一群服務優質,技術過關的白衣戰士。其中包括心血管內科,神經內外科、呼吸內科、消化內科,腎內科,內分泌科、普外科、骨外科,中醫專科醫師、主治醫師、初級醫師,以及主管護師、護師,護士等。
制冷機組:
制冷機組的組成:壓縮機(類壓縮機子系統)、冷凝器、膨脹閥,蒸發器和控制系統等。
1、制冷壓縮機的作用
制冷壓縮機是制冷裝置中最主要的設備,通常稱為制冷裝置中的主機。制冷劑蒸氣從低壓提高為高壓以及汽體的不斷流動、輸送,都是借助于制冷壓縮機的工作來完成的。
也就是說,制冷壓縮機的作用是:
1)從蒸發器中吸取制冷劑蒸氣,以保證蒸發器內一定的蒸發壓力。
2)提高壓力,將低壓低溫的制冷劑蒸氣壓縮成為高壓高溫的過熱蒸氣,以創造在較高溫度(如夏季35℃左右的氣溫)下冷凝的條件。
3)輸送并推動制冷劑在系統內流動,完成制冷循環。
2、根據冷卻介質種類的不同,冷凝器可歸納為四大類,其作用如下:
⑴水冷卻式:在這類冷凝器中,制冷劑放出的熱量被冷卻水帶走。冷卻水可以是一次性使用,也可以循環使用。水冷卻式冷凝器按其不同的結構型式又可分為立式殼管式、臥式殼管式和套管式等多種。
⑵空氣冷卻式(又叫風冷式):在這類冷凝器中,制冷劑放出的熱量被空氣帶走。空氣可以是自然對流,也可以利用風機作強制流動。這類冷凝器系用于氟利昂制冷裝置在供水不便或困難的場所。
⑶水—空氣冷卻式:在這類冷凝器中,制冷劑同時受到水和空氣的冷卻,但主要是依靠冷卻水在傳熱管表面上的蒸發,從制冷劑一側吸取大量的熱量作為水的汽化潛熱,空氣的作用主要是為加快水的蒸發而帶走水蒸氣。所以這類冷凝器的耗水量很少,對于空氣干燥、水質、水溫低而水量不充裕的地區乃是冷凝器的優選型式。這類冷凝器按其結構型式的不同又可分為蒸發式和淋激式兩種。
⑷蒸發—冷凝式:在這類冷凝器中系依靠另一個制冷系統中制冷劑的蒸發所產生的冷效應去冷卻傳熱間壁另一側的制冷劑蒸汽,促使后者凝結液化。如復疊式制冷機中的蒸發—冷凝器即是。
3、膨脹閥的作用:膨脹閥起節流降壓的作用,經冷凝器冷凝后的高壓制冷劑液體經過節流閥時,因受阻而使壓力下降,導致部分制冷劑液體氣化,同時吸收氣化潛熱,其本身溫度也相應降低,成為低溫低壓的濕蒸汽,然后進入蒸發器。
4、蒸發器的作用:低溫的冷凝“液”體通過蒸發器,與外界的空氣進行熱交換,“氣”化吸熱,達到制冷的效果。蒸發器主要由加熱室和蒸發室兩部分組成。加熱室向液體提供蒸發所需要的熱量,促使液體沸騰汽化;蒸發室使氣液兩相完全分離。加熱室中產生的蒸氣帶有大量液沫,到了較大空間的蒸發室后,這些液體借自身凝聚或除沫器等的作用得以與蒸氣分離。通常除沫器設在蒸發室的頂部。
蒸發器按操作壓力分常壓、加壓和減壓3種。按溶液在蒸發器中的運動狀況分有:①循環型。沸騰溶液在加熱室中多次通過加熱表面,如中央循環管式、懸筐式、外熱式、列文式和強制循環式等。②單程型。沸騰溶液在加熱室中一次通過加熱表面,不作循環流動,即行排出濃縮液,如升膜式、降膜式、攪拌薄膜式和離心薄膜式等。③直接接觸型。加熱介質與溶液直接接觸傳熱,如浸沒燃燒式蒸發器。蒸發裝置在操作過程中,要消耗大量加熱蒸汽,為節省加熱蒸汽,可采用多效蒸發裝置和蒸汽再壓縮蒸發器。
隔震:
一種新型的建筑結構耐震形式,通過在房屋的某層柱頂設置隔震墊,阻止地震作用向上傳遞,從而達到減弱結構地震反映的效果。
減震效果一般在50%到90%,并在抗震設防烈度8度及以上的抗震區,可顯示出較為明顯的經濟性。
相關鏈接:螺桿式冷水機組彈簧減震器




有限公司様-PS-11、PS-12-產線空調系統工程橡膠接頭-4.jpg)








